来源:艾特贸易2019-09-09
简介如图 1-27 所示为变频空调器的制冷工作原理。 ①变频空调器通电后,电源为室内外机控制电路供电,微处理器复位处于等待状态。由室温检测将室内的温度检测信号送入室内控制电路中
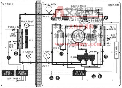
如图1-27所示为变频空调器的制冷工作原理。
①变频空调器通电后,电源为室内外机控制电路供电,微处理器复位处于等待状态。由室温检测将室内的温度检测信号送入室内控制电路中。
②当室内控制电路接收到制冷指令信号后(遥控信号),并根据接收到的室内温度自行调整制冷量的要求,向室内风扇电机、导风板电机和室外机控制电路传输控制信号。
③室外机控制电路中的微处理器接收到室内机传输的制冷指令信号后,向变频电路传输频率较高的驱动信号,送入变频驱动电路中。
④变频电路内部的功率模块对驱动信号进行功率放大,并驱动变频压缩机工作。
⑤变频压缩机运转后制冷剂在压缩机中被压缩,将原本低温低压的制冷剂气体压缩成高温高压的过热蒸气后,由压缩机排气管口排出。压缩机排出的制冷剂经四通阀换向后,制冷剂流入室外机的冷凝器中。

图1-27制冷工作原理
⑥高温高压的过热蒸气在冷凝器中进行冷却,通过风扇的冷却散热作用,过热的制冷剂由气态变为液态。
⑦液态制冷剂再经干燥过滤器、毛细管节流降压,将低温低压的制冷剂液体由液体管(细管)送入室内机。
⑧制冷剂液体在室内机的蒸发器中吸热汽化,周围空气的温度下降,冷风即被贯流风扇吹入室内。
⑨汽化后的制冷剂气体再经气体管(粗管)送回室外机,经四通阀使气态制冷剂经存储器吸回到压缩机中,再次被压成高温高压的过热蒸气,维持制冷循环。
当变频空调器工作一定时间后,室温接近设定温度时,室内机控制电路为室外机控制电路传输减小压缩机转速的运转指令信号2B。此时,室外机控制电路将降低输出的信号频率2B,从而使变频压缩机的转速降低2B。变频压缩机保持低速运转,使室内温度维持在设定值,只有缓慢的变化。
3.制热工作原理
如图1-28所示为变频空调器的制热工作原理。从图中可以看出,变频空调器的制热工作原理和制冷刚好相反,制冷剂是由压缩机排出经四通阀送到室内机的蒸发器中。室内机的蒸发器起到“冷凝器”的作用,而室外机的冷凝器则起到“蒸发器”的作用,因此制热时室内机吹出的是热风,而室外机吹出的是冷风。

图1-28变频空调器的制热工作原理
室内风扇电机和霍尔元件的检测